20+ Gambar Jendela Kaca Aluminium, Percantik Ruangan!
November 10, 2020
Pintu dan jendela aluminium, Harga jendela kaca aluminium, Jendela aluminium Putih, Jendela Aluminium Geser, Harga Jendela Aluminium Minimalis, Kusen jendela aluminium, Jendela aluminium hitam, Jendela Aluminium Kaca mati, Jenis jendela Aluminium, Jendela Aluminium Jakarta, Model Jendela Aluminium rumah minimalis, Harga Jendela Kaca kayu,
20+ Gambar Jendela Kaca Aluminium, Percantik Ruangan! - Bagi orang orang dengan selera yang tinggi, terkadang memutuskan gambar jendela merupakan hal yang sangat sulit. Akan muncul banyak pandangan saat memutuskan gambar jendela yang dibutuhkan dan sesuai dengan selera. Padahal sebenarnya menentukan gambar jendela ialah hal yang mudah, asalkan senada dengan konsep ruangan, dana dan kebutuhan. Kita harus tahu, bahwa sebenarnya tidak ada gambar jendela yang secara sengaja dibuat dengan desain yang jelek, hal ini dikarenakan setiap gambar jendela itu memiliki fungsi fungsi tersendiri di setiap ruangan.
Di bawah ini, kami akan memberikan informasi tentang gambar jendela. Ada banyak gambar yang dapat Anda jadikan referensi dan memudahkan Anda dalam mencari ide dan inspirasi untuk membuat gambar jendela. Model desain yang diusung juga tergolong indah, sehingga nyaman untuk dipandang.Berikut yang kami sampaikan tentang gambar jendela dengan judul 20+ Gambar Jendela Kaca Aluminium, Percantik Ruangan!.
Harga Kusen Aluminium Kaca Murah Per Meter . Sumber Gambar : windownesia.co.id
60 Jendela Aluminium Minimalis Harga GAMBAR MODEL
Jendela aluminium ini tampak memberikan kesan elegan sebelum kamu tidur dengan pemandangan di balik kaca beningnya itu yang bisa membuat pikiranmu jadi lebih fresh Harga jendela seperti ini hanya di kisaran Rp 1 500 000
Contoh Gambar Jendela Aluminium Aluminium Kaca . Sumber Gambar : aluminiumkaca.blogspot.com
85 Jendela Minimalis Rumah Kamar MODEL DESAIN GAMBAR
Harga Jendela Aluminium 1 Jendela casement silver 60 x 120 kaca polos 5 mm Rp 425 850 2 Jendela casement coklat 60 x 120 kaca polos 5 mm Rp 475 850 3 Jendela sliding silver 60 x 120 kaca polos 5 mm Rp 450 850 4 Jendela sliding coklat 60 x 120 kaca polos 5 mm Rp 850 850 5 Pintu swing kaca polos 5 mm Rp 1 850 850 6

HARGA JENDELA PINTU KAYU SLIDING KAMAR MINIMALIS VS HARGA . Sumber Gambar : kusenupvcjendelapintucronch.wordpress.com
Jendela Aluminium Kusen Aluminium
Tampilan Rumah Elegan dengan Jendela Aluminium Jika anda sedang mencari Jendela Aluminium untuk menjadi bagian dari ornamen di dalam rumah anda ada beberapa hal yang harus anda perhatikan Salah satunya adalah dalam hal dimana tempat anda membeli jendela dengan bahan dasar aluminium ini Pastikan anda membeli di tempat yang sudah terpercaya agar kualitas dari jendela

Pintu Jendela Kaca Aluminium Harga Pintu Aluminium . Sumber Gambar : pintujendelakacaluminium.wordpress.com
Contoh Gambar Jendela Aluminium Aluminium Kaca
2009 10 13 Contoh Gambar Jendela Aluminium Beberapa konsumen kami banyak yang menanyakan contoh gambar jendela aluminium oleh sebab itu akan kami tampilkan beberapa contoh gambar jendela yang pernah kami kerjakan Gambar 1 Jendela aluminium ini terdiri dari tiga kolom dengan sisi kanan dan kiri jendela hidup dan ditengahnya kaca mati
Harga Kusen Aluminium Pintu Jendela Aluminium . Sumber Gambar : hargakusenaluminiumarimata.blogspot.com
Detail Kusen Jendela Aluminium Autocad Dwg Jagoan Kode
Detail kusen jendela ini admin buat menjadi 2 yang pertama detail kusen aluminium jendela bukaan jendela yang bisa dibuka dengan detail kusen aluminium kaca mati Atau kaca yang tidak bisa dibuka Nah kalau kalian penasaran dengan bentuk bentuk nya kalian bisa langsung melihat foto atau screenshot nya dibawah ini

Harga Pintu Jendela Aluminium . Sumber Gambar : pintukacajendelakusenaluminium.blogspot.com
Jendela Aluminium Aluminium Kaca
Jendela Aluminium Pilihan Terbaik Untuk Rumah Anda Jendela Aluminium kini semakin banyak bermunculan di kawasan perumahan elit Ini menandai bahwa konsumen semakin sadar akan peran dan funsgi atas Jendela Aluminium Sebagaimana kita ketahui bahwa peran jendela dalam bagian komponen bangunan rumah sangatlah penting untuk sirkulasi udara Jumlah jendela serta ukuran jendela

Jendela Aluminium Jual Aluminium Jogja . Sumber Gambar : aluminiumjogja.wordpress.com
Desain Kusen Kayu Aluminium Minimalis Jendela Pintu
Gambar kusen jendela dan pintu dari jenis kayu atau aluminium seperti yang telah disajikan adalah beberapa contoh yang berhasil diperoleh dari berbagai pihak Karena merupakan sebuah kutipan yang didapat dari sumber sumber tertentu maka cukup wajar apabila nantinya terdapat kesamaan antara gambar di atas dengan pihak lain yang juga sama sama menyajikan contoh model kusen aluminium
Harga Kusen Aluminium Pintu Jendela Aluminium . Sumber Gambar : pintujendela-aluminium.blogspot.com
Harga Kusen Aluminium Pintu dan Jendela September 2021
Harga Pintu Jendela Aluminium Plus Kaca Jendela casement silver 60 x 120 kaca polos 5 mm Rp 425 000 Jendela casement coklat 60 x 120 kaca polos 5 mm Rp 475 000 Jendela sliding silver 60 x 120 kaca polos 5 mm Rp 450 000 Jendela sliding coklat 60 x 120 kaca
Harga Kusen Aluminium Pintu Jendela Aluminium . Sumber Gambar : hargakusenaluminiumarimata.blogspot.com
Sumber Aluminium Kaca Sedia Kusen Aluminium Jendela
Sumber Aluminium Kaca Kusen Aluminium Dan Partisi Kaca Pengalaman Sejak Thn 2001 Berikan kami gambar kerja dengan ukuran detail akan kami beri rincian penawaran harga terbaik dan pekerjaan rapi bergaransi Salah satunya adalah kusen baik itu kusen untuk jendela kusen Read more

Ide Top 21 Jendela Dengan Kaca Mati . Sumber Gambar : desainkurumah.blogspot.com

Harga Kusen Aluminium Pintu Jendela Kaca Aluminium . Sumber Gambar : kusenalumunium3.blogspot.com
Contoh Gambar Jendela Aluminium Aluminium Kaca . Sumber Gambar : aluminiumkaca.blogspot.com

60 Jendela Aluminium Minimalis Harga GAMBAR MODEL GESER . Sumber Gambar : insinyurbangunan.com

60 Jendela Aluminium Minimalis Harga GAMBAR MODEL GESER . Sumber Gambar : insinyurbangunan.com

Harga Kusen Aluminium Pintu Jendela Kaca Aluminium . Sumber Gambar : kusenalumunium3.blogspot.com

Pondok Kelapa Harga Folding Gate . Sumber Gambar : arimatas.wordpress.com

daftar harga Pintu Jendela Kaca Aluminium . Sumber Gambar : pintujendelakacaluminium.wordpress.com

Harga Kusen Aluminium Pintu Jendela Kaca Aluminium . Sumber Gambar : kusenalumunium3.blogspot.com
Harga Kusen Aluminium Pintu Jendela Aluminium . Sumber Gambar : hargakusenaluminiumarimata.blogspot.com

Gambar Jendela Aluminium Aluminiumkacadepok com . Sumber Gambar : www.aluminiumkacadepok.com

Karya Alumunium . Sumber Gambar : karyoalumunium.blogspot.com

Jual pintu doble kaca dan bovent jendela aluminium Kota . Sumber Gambar : www.tokopedia.com

Katalog Jendela Kaca Mati 100 Model Terbaru 2021 . Sumber Gambar : indosteel.net

SINAR ALUMUNIUM SEMARANG Harga Pintu Kaca . Sumber Gambar : alumuniumsemarang.blogspot.com

KUSEN PINTU ALUMINIUM buat kusen pintu jendela aluminium . Sumber Gambar : kusenpintualuminium-karawang.blogspot.com

Harga Pintu Aluminium Kaca ASIA Bengkel Las . Sumber Gambar : asiabengkellas.com
Harga Daun Pintu Aluminium Swing Pintu Aluminium Kaca . Sumber Gambar : windownesia.co.id

Cara Membuat Pintu Aluminium Kaca Minimalis . Sumber Gambar : pintualuminium-malang.blogspot.com
HARGA KUSEN ALUMINIUM MURAH DI JAKARTA . Sumber Gambar : hargaakusenaluminiumjakarta.blogspot.com

Foto Pintu Kaca Utama Modern Eksterior Rumah 1883 . Sumber Gambar : rumahminimalisoi.com

Kusen Aluminium 3Inch Silver TMII Aluminium Kaca . Sumber Gambar : aluminiumkaca.blogspot.com
Newest Detail Pintu Kaca Aluminium Dwg Pintu Minimalis . Sumber Gambar : minimalistdesignconcept.blogspot.com
Jendela Aluminium Kaca Tempered Pintu Jendela Kusen . Sumber Gambar : www.jayaaluminiumbogor.com

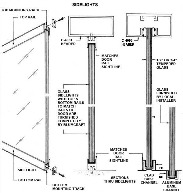
Gambar Kerja Detail Jendela Aluminium File Dwg Kaula . Sumber Gambar : www.kaulangora.com
Detail Kusen Jendela Aluminium Contoh Gambar AutoCAD . Sumber Gambar : www.arsitur.com